-
- 物件名
-
7846 Alston Way
カリフォルニア州 ルサーン
-
- $499,000
- 価格
-
- 4
- 寝室
-
- 3
- バス
-
- 6,098sq ft
- 敷地面積
更新:2025-09-16 03:11:16
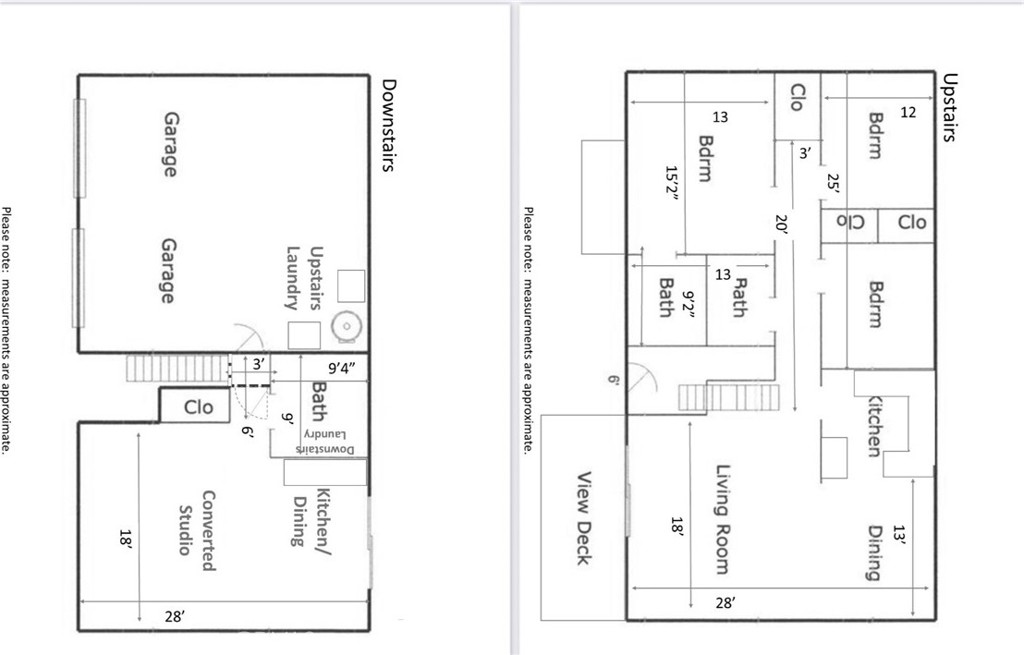
7846 Alston Wayの物件詳細
- 土地面積
- 未登録
- 土地面積の情報元
- Assessor
- 住戸番号
- 未登録
- 物件種類
- 分譲
- 郵便番号
- 95458
- 居住者の種類
- 未登録
- バリアフリー性
- 2+ Access Exits,36 Inch Or More Wide Halls
- 売り出し開始日
- 2025-08-12
所在地
リスト提供元: Compass
7846 Alston Wayの物件情報
- 土地/区画情報
-
- 敷地面積: 6,098sq ft
- 土地面積: 未登録
- 土地面積の単位: Square Feet
- 駐車場詳細
-
- ガレージの駐車台数: 2
- インテリアの特徴
- エクステリアの特徴
-
- 建築に関する事項: 未登録
- 外観設備: Biking,Fishing,Lake,Sidewalks
- 屋根: Asbestos Shingle
- プール: なし
- 区画の説明: Lot 6500-9999
- 学校関連情報
-
- エレメンタリースクール: 未登録
- ミドルスクール: 未登録
- ハイスクール: 未登録
- 学区: Lucerne Valley Unified
- 税金、費用関係
-
- 維持管理費: 未登録
- 年間固定資産税額: 未登録
- 固定資産税課税年度: 未登録
ご購入までの流れ
- STEP 1 | まずはお問い合わせ
-
アメリカ不動産投資がはじめての方でもご安心ください。
ロサンゼルス在住の不動産エージェント・松田美紗妃が丁寧にヒアリングします。
- Step 2|物件選定
-
この物件以外に条件に合ったものがないか提案いたします。
物件が絞り込めましたら、オンラインで内覧いただけます。
- Step 3|購入申込(オファー提出)
-
購入したい物件が決まれば、「購入申込書(オファー)」を売主に提出します。
希望価格や契約条件などを記入し、提出はすべてオンラインで完結します。
- Step 4|売買契約の成立
-
売主がオファーに同意し、署名すると法的に売買契約が成立します。
契約書はデジタルで署名可能なため、日本にいながら手続きが可能です。
- Step 5|エスクロー開始(資金と書類の管理)
-
中立的な第三者機関である「エスクロー会社」が、資金と書類を安全に管理します。
- 手付金(Earnest Money)の入金
- エスクロー口座の開設
- 所有権調査・保険の手配
- 建物の検査(ホームインスペクション)
- クロージングに向けた書類の準備
エスクローはエージェントが手配いたします
- Step 6|決済・引き渡し(クロージング)
-
- 残金、諸費用を国際送金(エスクロー会社の口座へ)
- 物件の最終チェック(現地エージェントが代行)
- 所有権移転書類への署名(公証人対応含む)
- アメリカで登記が完了し、正式にオーナーへ
- 鍵の引き渡し(日本からでも完了可能)
- 開示情報から市場調査の確認(市場価格との比較など)
- Step 7|購入後のサポートも
-
- 賃貸管理(プロパティマネジメント)入居者対応や家賃管理を任せられる管理会社のご紹介可能です
- 税務申告のご相談日米での税務処理も必要です。信頼できる会計士をご紹介可能です。
お問い合わせ
タウンハウス
各戸が長屋のように壁を共有し、横に複数繋がっているもの。
日本でいう連棟式住宅のようなもの。
タイムシェア物件
数人で買い、使う時間を共有する物件。主にバケーション用。
ルームレンタル
家やアパート内の一部屋を借りる形式。
家主が住んでいる家の一部屋を他人に貸すケースや、アパートの一部屋を他人と共有する場合などがこれに該当する。
プレハブ住宅
移動可能な住宅。主に借地に設置。
Own Your Own
部屋は自分のものだが、建物全体は共同所有する物件
共有所有権物件
共同所有の物件。数人で投資して売買。
自ら住むのではなく投資に使われることが多い。
浴室: 3
- フルバスルーム数: 3
フルバスルーム
トイレ・洗面台・バスタブ・シャワーが揃ったバスルーム。
3/4バスルーム
トイレ・洗面台・シャワーのバスルーム(バスタブがない)。
ハーフバスルーム
トイレ・洗面台のバスルーム(バスタブ、シャワーがない)。






































